来店予約・
お問い合わせ
新築一戸建て

【仲介手数料無料対象物件】昭島市拝島町3丁目第10期全3棟

販売価格
3,880 万円
4,280 万円
所在地
昭島市拝島町3-171-6
交通
JR青梅線「拝島」駅徒歩20分
間取り
2LDK+S~4LDK
築年月
2026年1月

おすすめ
ポイント

【仲介手数料無料】たけおか不動産では仲介手数料無料対象物件です

【各棟情報】

No
写真
価格
土地面積・
建物面積
間取り
販売状況
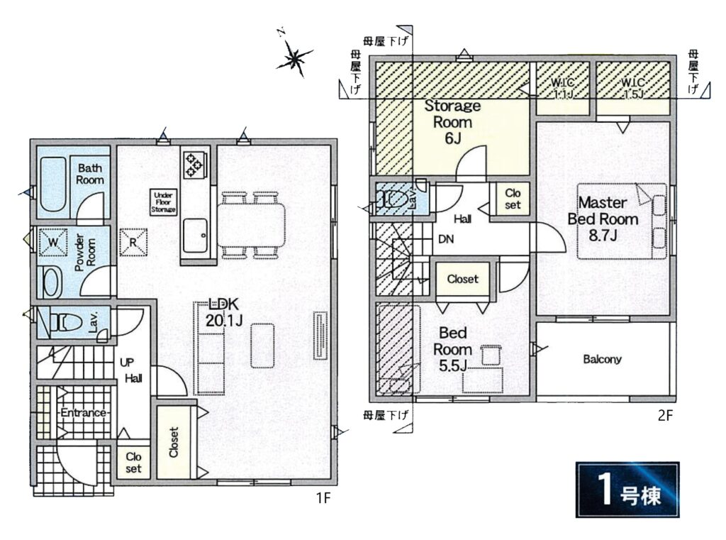
1号棟
クリックで拡大表示
3,880万円
134.29m²
95.97m²
2LDK+S
販売中
No
写真
価格
土地面積・
建物面積
間取り
販売状況
2号棟
クリックで拡大表示
3,980万円
137.69m²
93.15m²
4LDK
販売中
No
写真
価格
土地面積・
建物面積
間取り
販売状況
3号棟
クリックで拡大表示
4,280万円
208.64m²
93.15m²
4LDK
販売中

【周辺環境】

啓明学園幼稚園(約60m)
なかよし広場(約163m)
昭島市立やまのかみ会館(約192m)
昭島市立やまのかみ公園(約327m)
拝島郵便局(約368m)
スーパーオザム 昭島拝島店(約398m)
昭栄保育園(約464m)
拝島保育園(約502m)
昭島市立拝島会館(約513m)
福生熊川南郵便局(約545m)
スギドラッグ福生熊川店(約572m)
セブンイレブン昭島拝島町4丁目店(約605m)
熊川病院(約685m)
拝島第一学童クラブ(約738m)
昭島市立拝島第一小学校(約759m)
ローソン昭島緑町5丁目店(約768m)
林ノ上公園(約798m)
昭島市民図書館緑分館(約803m)
松原児童遊園(約868m)
昭島腎クリニック(約874m)
拝島公園(約915m)
昭島市立拝島第三小学校(約935m)
西松屋昭島店(約952m)
セブンイレブン昭島緑町2丁目店(約1070m)
みやま歯科クリニック(約1078m)
松原町三丁目児童遊園(約1084m)
昭島松原四郵便局(約1085m)
ドラッグセイムス昭島店(約1121m)
昭島市立多摩辺中学校(約1128m)
すまいる・たいむ(約1136m)
ほおむり・たいむ(約1136m)
オートバックス・昭島店(約1157m)
たいらや拝島店(約1260m)

【MAP】

【物件概要】

物件名 クレイドルガーデン 販売価格 3,880万円~4,280万円
所在地 昭島市拝島町3-171-6 交通 JR青梅線「拝島」駅徒歩20分
間取り 2LDK+S~4LDK 築年月 2026/01/01
建物面積 93.15m²~95.97m² 土地面積 134.29m²~208.64m²
総戸数 全3棟 販売戸数 3棟
駐車スペース 2台可 設備 東京電力・公営水道・本下水・都市ガス
引渡時期 相談 現況 完成済み
構造・規模 木造スレート葺2階建 用途地域 第一種低層住居専用地域
地目 宅地 建ぺい率/容積率 40/80
都市計画 市街化区域 権利種類 所有権
小学校区 昭島市立拝島第一小学校 中学校区 昭島市立多摩辺中学校
建築確認番号 第R07SHc006326号他 接道 南側5.00m公道
取引態様 媒介
備考
ホーム > 物件一覧 > 【仲介手数料無料対象物件】昭島市拝島町3丁目第10期全3棟
来店予約・
お問い合わせ
アクセス