来店予約・
お問い合わせ
新築一戸建て

【仲介手数料無料対象物件】立川市栄町3丁目5期全3棟

販売価格
4,630 万円
5,430 万円
所在地
立川市栄町3-52-1
交通
JR中央線「立川」駅バス14分「西武バス立川営業所」停歩6分
間取り
3LDK
築年月
2026年4月

おすすめ
ポイント

【仲介手数料無料】たけおか不動産では仲介手数料無料対象物件です

【各棟情報】

No
写真
価格
土地面積・
建物面積
間取り
販売状況
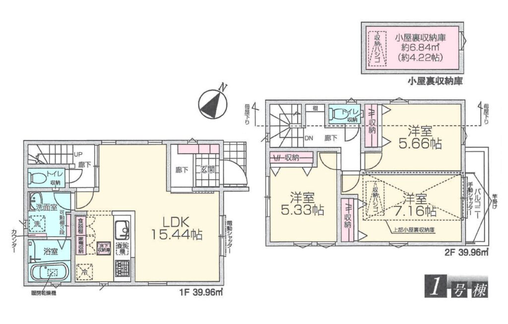
1号棟
クリックで拡大表示
5,430万円
100.01m²
79.92m²
3LDK
販売中
No
写真
価格
土地面積・
建物面積
間取り
販売状況
4号棟
クリックで拡大表示
4,830万円
82.54m²
66.01m²
3LDK
販売中
No
写真
価格
土地面積・
建物面積
間取り
販売状況
5号棟
クリックで拡大表示
4,630万円
82.54m²
65.80m²
3LDK
販売中

【周辺環境】

栄保育園(約224m)
セブンイレブン立川栄町3丁目店(約287m)
立川市立南砂小学校(約328m)
高砂公園(約343m)
つくし保育園(約362m)
いなげや立川栄町店(約384m)
さかえ会館(約413m)
クリエイトS・D立川栄町店(約431m)
宮本整形外科 (約475m)
立川市立第二中学校(約477m)
栄郵便局(約531m)
立川みどり幼稚園(約550m)
南部公園(約616m)
林整形外科(約631m)
業務スーパー国立弁天通り店(約690m)
高松児童館(約717m)
栄緑地(約721m)
立川市立第五小学校(約727m)
国分寺西町郵便局(約728m)
ファミリーマート国分寺弁天通り店(約730m)
サンドラッグ国分寺西町店(約753m)
ウェルパーク国分寺西町店(約756m)
東栄児童公園(約771m)
まつむら歯科(約803m)
江の島保育園(約818m)
愛光保育園(約834m)
ピーコックストア国立弁天通り店(約838m)
弁天通り歯科医院(約840m)
高松図書館(約867m)
コープ弁天通り店(約868m)
オリンピック 国立店(約874m)
藤井医院(約880m)
立川市立第二小学校(約911m)
北第一公園(約927m)
ウエルシア立川栄町店(約929m)
国立ひまわり保育園(約980m)
ららぽーと立川立飛(約989m)
スギ薬局立川栄町店(約996m)
立川高松郵便局(約1038m)
西町ゴリラ公園(約1040m)
ケーズデンキ立川店(約1077m)
ローソン国分寺西町三丁目店(約1118m)
北保育園(約1126m)
国分寺市立第八小学校(約1132m)
きたひだまり保育園(約1145m)
多摩都市モノレール「立飛」駅(約1151m)
国立市立第四小学校(約1163m)
北第二公園(約1168m)
赤とんぼ保育園(約1187m)
アリーナ立川立飛(約1211m)
わかば動物病院(約1234m)
MEGAドン・キホーテ 立川店(約1249m)

【MAP】

【物件概要】

物件名 エクセレントコート 販売価格 4,630万円~5,430万円
所在地 立川市栄町3-52-1 交通 JR中央線「立川」駅バス14分「西武バス立川営業所」停歩6分
間取り 3LDK 築年月 2026/04/01
建物面積 65.80m²~79.92m² 土地面積 82.54m²~100.01m²
総戸数 全3棟 販売戸数 3棟
駐車スペース 1台 設備 東京電力・公営水道・本下水・都市ガス
引渡時期 相談 建物現況 建築中
構造・規模 木造スレート葺2階建 用途地域 第一種低層住居専用地域
地目 宅地 建ぺい率/容積率 40/80
都市計画 市街化区域 権利種類 所有権
小学校区 立川市立南砂小学校 中学校区 立川市立第二中学校
建築確認番号 第SJK-KX255636100号他 接道 南西側6.50m公道、北東側6.00m公道
取引態様 媒介
備考
ホーム > 物件一覧 > 【仲介手数料無料対象物件】立川市栄町3丁目5期全3棟
来店予約・
お問い合わせ
アクセス