来店予約・
お問い合わせ
新築一戸建て

【仲介手数料無料対象物件】立川市富士見町4丁目7期全2棟

販売価格
4,980 万円
所在地
立川市富士見町4-10-20
交通
JR青梅線「西立川」駅徒歩12分
間取り
3LDK
築年月
2025年9月

おすすめ
ポイント

【仲介手数料無料】たけおか不動産では仲介手数料無料対象物件です。

【各棟情報】

No
写真
価格
土地面積・
建物面積
間取り
販売状況
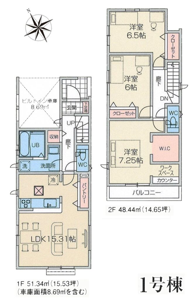
1号棟
クリックで拡大表示
4,980万円
89.56m²
99.78m²
3LDK
販売中

【周辺環境】

奥平クリニック(約61m)
立川めぐみ幼稚園(約117m)
西立川保育園(約133m)
ローソンストア100 立川南通店(約165m)
富士見公園(約235m)
富士見第二公園(約261m)
立川富士見郵便局(約306m)
立川市立第四小学校(約338m)
富士塚公園(約344m)
さえき西立川店(約399m)
ウェルパーク西立川店(約472m)
都立多摩能力開発センター(約503m)
富士見五丁目公園(約511m)
立川市立新生小学校(約529m)
富士見七南公園(約538m)
富士見児童館(約543m)
唯善クリニック(約550m)
富士見二あそび場(約566m)
立川市立第八中学校(約569m)
ウエルシア西立川駅南口店(約590m)
立川富士見六郵便局(約596m)
ビッグエー立川富士見町店(約619m)
ファミリーマート 西立川駅前店(約620m)
セブンイレブン昭島東町4丁目店(約624m)
立川市歴史民俗資料館(約640m)
玉川保育園(約648m)
JR青梅線「西立川」駅(約648m)
愛光第五保育園(約661m)
ぐるぐる公園東(約674m)
立川市立第一中学校(約704m)
たぬき公園(約708m)
コープみらいミニコープ立川店(約767m)
オーケーストア 立川富士見町店(約782m)
セブンイレブン 立川柴崎町1丁目店(約782m)
ダイソー立川富士見町店(約783m)
満願寺跡(約789m)
東町北部児童遊園(約789m)
諏訪の森保育園(約802m)
立川市立多摩川図書館(約833m)
富士見六西公園(約861m)
くじらの森整形外科・皮膚科(約869m)
セブンイレブン立川富士見町7丁目店(約870m)
富士見六東公園(約881m)
立川たんぽぽ保育園(約881m)
諏訪の森公園(約882m)
昭島市立東小学校(約889m)
多摩保育園(約894m)
諏訪神社(約900m)
富士見六公園(約909m)
昭島ドリーム保育園(約923m)
浅見胃腸科・外科・あさみ眼科(約973m)
立川中央病院(約975m)
たちかわ創造舎(約978m)
郷地東児童遊園(約998m)
あおぞら公園(約999m)
多摩信用金庫郷地支店(約1032m)
富士見六公園(約1036m)
郷地なかよし広場(約1050m)
立川市立第一小学校(約1059m)
昭和公園(約1062m)
立川市柴崎図書館(約1078m)
柴崎にじのいろ保育園(約1137m)
昭島市立昭和中学校(約1232m)

【MAP】

【物件概要】

物件名 グラファーレシリーズ 販売価格 4,980万円
所在地 立川市富士見町4-10-20 交通 JR青梅線「西立川」駅徒歩12分
間取り 3LDK 築年月 2025/09/01
建物面積 99.78m² 土地面積 89.56m²
総戸数 全2棟 販売戸数 1棟
駐車スペース 1台可 設備 東京電力・公営水道・本下水・都市ガス
引渡時期 相談 建物現況 完成済み
構造・規模 木造スレート葺2階建 用途地域 第一種住居地域
地目 宅地 建ぺい率/容積率 60/200
都市計画 市街化区域 権利種類 所有権
小学校区 立川市立第四小学校 中学校区 立川市立第一中学校
建築確認番号 第HPAー25ー01946-1号 接道 北側5.45m公道
取引態様 媒介
備考

建物面積に車庫部分8.69㎡含む

ホーム > 物件一覧 > 【仲介手数料無料対象物件】立川市富士見町4丁目7期全2棟
来店予約・
お問い合わせ
アクセス