来店予約・
お問い合わせ
新築一戸建て

【仲介手数料無料対象物件】武蔵村山市残堀1丁目第13期全4棟

販売価格
3,680 万円
3,880 万円
所在地
武蔵村山市残堀1-10-3
交通
JR中央線「立川」駅バス40分「見晴橋」停歩5分
間取り
4LDK
築年月
2026年2月

おすすめ
ポイント

【仲介手数料無料】たけおか不動産では仲介手数料無料対象物件です

【各棟情報】

No
写真
価格
土地面積・
建物面積
間取り
販売状況
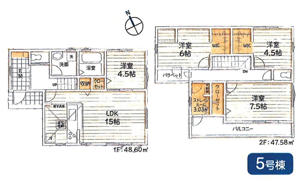
5号棟
クリックで拡大表示
3,780万円
123.07m²
96.18m²
4LDK
販売中
No
写真
価格
土地面積・
建物面積
間取り
販売状況
6号棟
クリックで拡大表示
3,780万円
118.01m²
94.36m²
4LDK
販売中
No
写真
価格
土地面積・
建物面積
間取り
販売状況
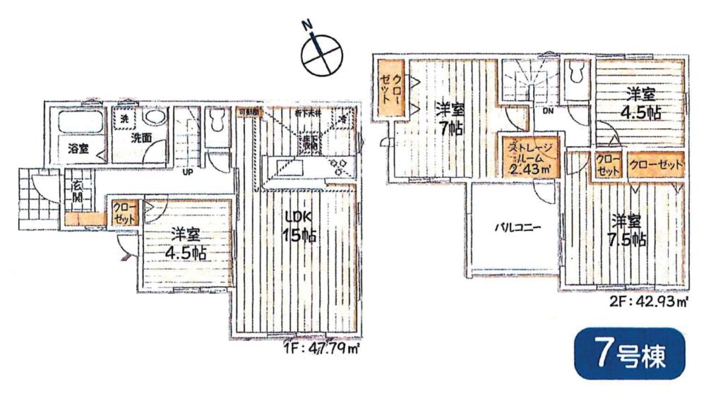
7号棟
クリックで拡大表示
3,680万円
120.02m²
90.72m²
4LDK
販売中
No
写真
価格
土地面積・
建物面積
間取り
販売状況
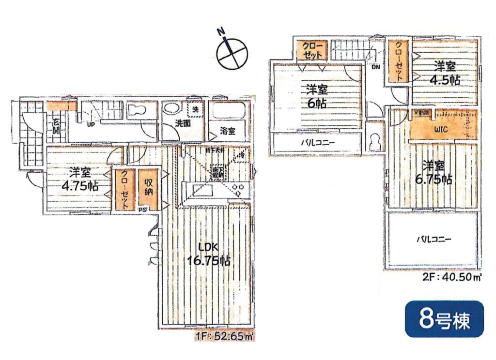
8号棟
クリックで拡大表示
3,880万円
117.57m²
93.15m²
4LDK
販売中

【周辺環境】

まどか保育園分園(約92m)
やまや残堀店(約145m)
武蔵村山市立第八小学校(約206m)
残堀川(約226m)
セブンイレブン残堀店(約286m)
タカハシウェアハウスセクシーマイザー武蔵村山店(約305m)
武蔵村山市立残堀・伊奈平地区会館・図書館・児童館(約310m)
いなげや残堀店(約312m)
かめい内科クリニック(約364m)
三ツ藤児童遊園(約376m)
三ツ藤郵便局(約432m)
ファミリーマート残堀店(約473m)
残堀・伊奈平地域運動広場(約505m)
ドラッグセイムス武蔵村山三ツ藤店(約523m)
サンドラッグ伊奈平店(約523m)
三ツ藤内科クリニック(約533m)
三ツ藤南公園(約538m)
ファミリーマート新青梅街道店(約575m)
八ヶ下児童遊園(約585m)
ローソン残堀5丁目店(約619m)
村山中藤保育園白樺(約638m)
ファミリーマート三ツ木店(約659m)
ヤマダ電機リアルネットセンター武蔵村山店(約702m)
聖光三ツ藤保育園(約704m)
武蔵村山市立第五中学校(約721m)
ディスカウントドラッグコスモス 伊奈平店(約745m)
北條医院(約761m)
たいらや武蔵村山店(約773m)
クリエイト 武蔵村山三ツ藤店(約780m)
スギ薬局残堀店(約787m)
セブンイレブン平和通り店(約789m)
山王森学童クラブ・児童館(約801m)
スーパーオザム村山店(約835m)
宮崎歯科医院(約843m)
武蔵村山市立第十小学校(約848m)
業務スーパー残堀店(約885m)
山王森公園(約892m)
武蔵村山市立第一中学校(約947m)
イオンモールむさし村山(約961m)
武蔵村山市立中久保図書館(約973m)
ファミリーマート中原店(約993m)
小山歯科クリニック(約994m)
セブンイレブン本町一丁目店(約1003m)
殿ケ谷北公園(約1040m)
コメリハード&グリーン武蔵村山中原店(約1072m)
中村運動広場(約1090m)
藤野医院(約1166m)
ダイソー武蔵村山本町店(約1196m)
中原郵便局(約1363m)

【MAP】

【物件概要】

物件名 リーブルガーデン 販売価格 3,680万円~3,880万円
所在地 武蔵村山市残堀1-10-3 交通 JR中央線「立川」駅バス40分「見晴橋」停歩5分
間取り 4LDK 築年月 2026/02/01
建物面積 90.72m²~96.18m² 土地面積 117.57m²~123.07m²
総戸数 全4棟 販売戸数 4棟
駐車スペース 2台可 設備 東京電力・公営水道・本下水・個別プロパンガス
引渡時期 相談 現況 完成済み
構造・規模 木造スレート葺2階建 用途地域 第一種低層住居専用地域
地目 宅地 建ぺい率/容積率 40%、80%
都市計画 市街化区域 権利種類 所有権
小学校区 武蔵村山市立第八小学校 中学校区 武蔵村山市立第五中学校
建築確認番号 第25UDI1W建07570号他 接道 南側5.00m公道、西側5.00m公道
取引態様 媒介
備考
ホーム > 物件一覧 > 【仲介手数料無料対象物件】武蔵村山市残堀1丁目第13期全4棟
来店予約・
お問い合わせ
アクセス