来店予約・
お問い合わせ
新築一戸建て

【仲介手数料無料対象物件】昭島市玉川町5丁目66期全12棟

販売価格
4,780 万円
5,380 万円
所在地
昭島市玉川町5-16
交通
JR青梅線「中神」駅徒歩7分
間取り
1LDK+S~3LDK
築年月
2025年10月

おすすめ
ポイント

【仲介手数料無料】たけおか不動産では仲介手数料無料対象物件です

【各棟情報】

No
写真
価格
土地面積・
建物面積
間取り
販売状況
3号棟
クリックで拡大表示

売約済
No
写真
価格
土地面積・
建物面積
間取り
販売状況
4号棟
クリックで拡大表示

売約済
No
写真
価格
土地面積・
建物面積
間取り
販売状況
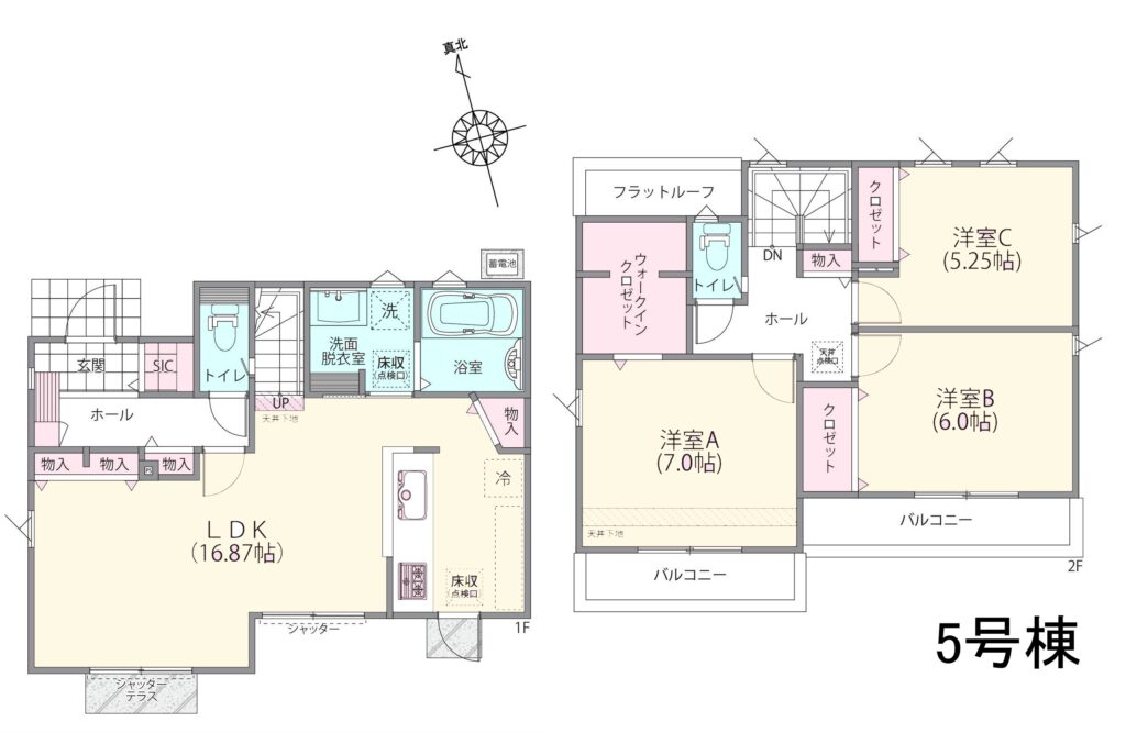
5号棟
クリックで拡大表示

売約済
No
写真
価格
土地面積・
建物面積
間取り
販売状況
6号棟
クリックで拡大表示
4,780万円
117.03m²
91.42m²
3LDK
販売中
No
写真
価格
土地面積・
建物面積
間取り
販売状況
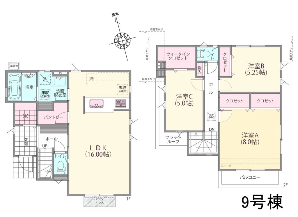
9号棟
クリックで拡大表示

売約済
No
写真
価格
土地面積・
建物面積
間取り
販売状況
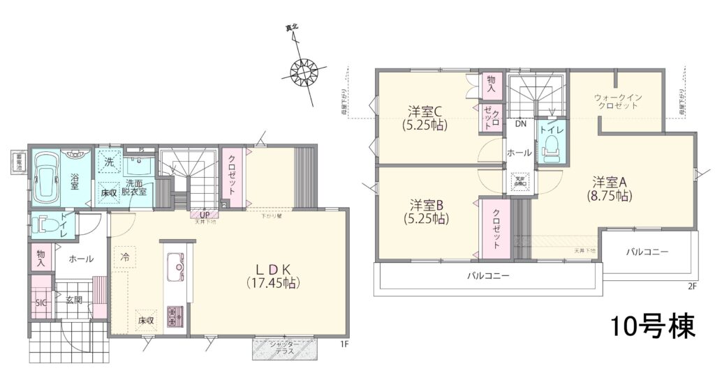
10号棟
クリックで拡大表示
4,880万円
120.54m²
92.53m²
3LDK
販売中
No
写真
価格
土地面積・
建物面積
間取り
販売状況
11号棟
クリックで拡大表示

売約済
No
写真
価格
土地面積・
建物面積
間取り
販売状況
12号棟
クリックで拡大表示
5,380万円
100.06m²
90.66m²
3LDK
販売中

【周辺環境】

みどりっ子昭島店(約78m)
中神保育園(約210m)
わかくさ保育園(約225m)
昭島市立朝日会館(約260m)
いなげや昭島中神店(約325m)
永山整形外科(約355m)
中神公園(約358m)
昭島市立中神小学校(約372m)
イーストテラス・サブスリー(約391m)
昭島市立玉川小学校(約402m)
竹口病院(約436m)
マルフジ東中神店(約441m)
朝日町いこい公園(約442m)
小松眼科(約465m)
富士診療所(約535m)
中神町二丁目児童遊園(約538m)
中神駅前郵便局(約542m)
昭和郵便局(約546m)
昭島玉川郵便局(約555m)
JR青梅線「中神」駅(約576m)
サンドラッグ中神二丁目店(約581m)
睦会児童遊園(約590m)
はじめ児童遊園(約592m)
セブンイレブン 中神駅北口店(約600m)
昭島幼稚園(約620m)
ローソン中神駅北口店(約643m)
しんクリニック(約659m)
生鮮市場TOP昭島中神店(約674m)
ウエルシア昭島朝日町店(約676m)
福島こどもの広場(約677m)
昭島市立八清公園(約680m)
昭島台幼稚園(約688m)
中神北口耳鼻咽喉科(約703m)
あけの星幼稚園(約713m)
大田医院(約717m)
ドラッグセイムス中神駅北口店(約734m)
ビック・エー昭島朝日町店(約734m)
昭島ナオミ保育園(約745m)
昭島ナオミこども園(約747m)
マツモトッキヨシ昭島中神町店(約751m)
エコスたいらや築地店(約752m)
富士見公園(約758m)
業務スーパー昭島店(約769m)
ローソン・スリーエフ 昭島中神店(約778m)
平田歯科医院(約785m)
保育園アルペジオ昭島中神町園(約790m)
平畑整形外科クリニック(約815m)
セブンイレブン昭島東町5丁目店(約815m)
昭島市勤労商工市民センター(約818m)
昭島市立武蔵野会館(約823m)
富士見湯(約824m)
昭島市総合スポーツセンター(約831m)
昭島相互診療所(約847m)
昭島中神郵便局(約850m)
セブンイレブン昭島宮沢町店(約852m)
昭島市立富士見丘小学校(約859m)
上ノ原保育園(約872m)
JR青梅線「東中神」駅(約883m)
昭島病院(約887m)
福島保育園(約919m)
昭島市立福島中学校(約932m)
昭和保育園(約932m)
ファミリーマート 昭島中神町新畑店(約934m)
昭島市立清泉中学校(約968m)
昭島市立昭和中学校(約995m)
昭和公園(約998m)
昭島市立共成小学校(約1003m)
マクドナルド 昭島店(約1037m)
アキシマエンス(約1049m)
セブンイレブン昭島福島町一丁目店(約1091m)
西公園(約1092m)
新生公園(約1106m)
宮沢公園(約1122m)
昭島市立富士見会館(約1142m)
つつじが丘保育園(約1229m)
昭島郷地郵便局(約1236m)
植ビルクリニック(約1245m)
あおぞら公園(約1250m)
郷地東児童遊園(約1292m)
Foocot昭島店(約1321m)
ミナパもくせいのもり(約1034m)

【MAP】

【物件概要】

物件名 スマイルタウン 販売価格 4,780万円~5,380万円
所在地 昭島市玉川町5-16 交通 JR青梅線「中神」駅徒歩7分
間取り 1LDK+S~3LDK 築年月 2025/10/01
建物面積 土地面積
総戸数 全12棟 販売戸数 3棟
駐車スペース 1台 設備 東京電力、公営水道、本下水、都市ガス
引渡時期 相談 建物現況 建築中
構造・規模 木造スレート葺き2階建 用途地域 第一種低層住居専用地域、第一種中高層住居専用地域
地目 宅地 建ぺい率/容積率 40%、60% 80%、200%
都市計画 市街化区域 権利種類 所有権
小学校区 昭島市立玉川小学校 中学校区 昭島市立昭和中学校
建築確認番号 第25UDI1T建00071号他 接道 北側5.00m公道、南側3.40m公道
取引態様 媒介
備考
ホーム > 物件一覧 > 【仲介手数料無料対象物件】昭島市玉川町5丁目66期全12棟
来店予約・
お問い合わせ
アクセス