来店予約・
お問い合わせ
新築一戸建て

【仲介手数料無料対象物件】東村山市廻田町4丁目2期全1棟

販売価格
5,280 万円
所在地
東村山市廻田町4-23-19
交通
西武西武園線「西武園」駅徒歩13分
間取り
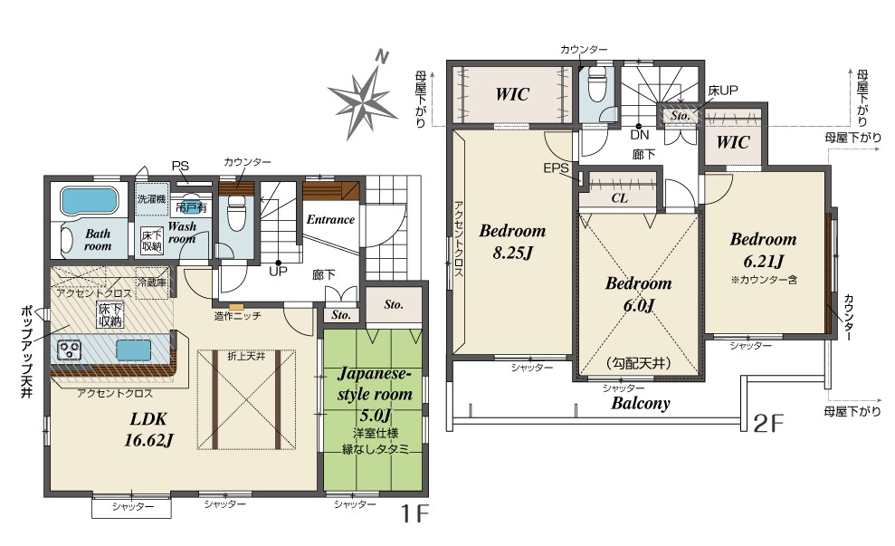
4LDK
築年月
2026年4月

おすすめ
ポイント

【仲介手数料無料】たけおか不動産では仲介手数料無料対象物件です

【各棟情報】

No
写真
価格
土地面積・
建物面積
間取り
販売状況
1号棟
クリックで拡大表示
5,280万円
126.48m²
100.96m²
4LDK
販売中

【周辺環境】

多摩湖歯科(約69m)
ファミリーマート多摩湖町店(約228m)
廻田文化センター(約242m)
セブンイレブン廻田町店(約258m)
東村山市立第三保育園(約270m)
東村山市立第四中学校(約286m)
空飛ぶ三輪車保育園(約286m)
ことり保育室(約292m)
東村山野口郵便局(約314m)
野口町二丁目第1仲よし広場(約403m)
東大典保育園(約404m)
北山児童館(約412m)
谷田池児童遊園(約413m)
廻田緑道(約444m)
多摩湖ふれあいセンター(約462m)
桑田医院(約462m)
えんどうクリニック(約495m)
健康広場(約570m)
ビック・エー東村山野口店(約597m)
東村山けやきクリニック(約597m)
折笠歯科(約608m)
東村山市立北山小学校(約613m)
野口町子育てひろば(約623m)
肉の八萬(約638m)
東村山市立回田小学校(約693m)
多摩湖町2丁目 第2仲よし広場(約711m)
はじめの保育園(約726m)
ファミリーマート廻田町店(約791m)
北山公園(約802m)
西武西武園線「西武園」駅(約810m)
セブンイレブン野口町2丁目店(約835m)
東村山むさしの保育園(約857m)
むさしの幼稚園(約863m)
東村山市立第七中学校(約876m)
セブンイレブン 東村山野口町1丁目店(約881m)
ローソン武蔵大和駅前店(約960m)
ウエルシア野口町店(約974m)
西武多摩湖線「武蔵大和」駅(約982m)
藤の宮公園(約1015m)
安藤内科クリニック(約1029m)
ファミリーマート東村山富士見町店(約1051m)
西武多摩湖線「多摩湖」駅(約1072m)
谷里保育園分園(約1106m)
けやき眼科クリニック(約1111m)
武蔵大和駅前郵便局(約1143m)
東村山診療所(約1160m)
ココカラファイン東大和清水店(約1215m)
紫水保育園(約1285m)
新山手病院(約1315m)

【MAP】

【物件概要】

物件名 ブルーミングガーデン 販売価格 5,280万円
所在地 東村山市廻田町4-23-19 交通 西武西武園線「西武園」駅徒歩13分
間取り 4LDK 築年月 2026/04/01
建物面積 100.96m² 土地面積 126.48m²
総戸数 全1棟 販売戸数 1棟
駐車スペース 2台可 設備 東京電力・公営水道・本下水・都市ガス
引渡時期 相談 現況 完成済み
構造・規模 木造スレート葺2階建 用途地域 第一種低層住居専用地域、
地目 宅地 建ぺい率/容積率 50/100
都市計画 市街化区域 権利種類 所有権
小学校区 東村山市立回田小学校 中学校区 東村山市立第四中学校
建築確認番号 第R07SHC122894号 接道 南側5.00m私道、東側5.00m私道
取引態様 媒介
備考

私道持分309.00㎡×1/11、フットパス12.00㎡×1/11あり

ホーム > 物件一覧 > 【仲介手数料無料対象物件】東村山市廻田町4丁目2期全1棟
来店予約・
お問い合わせ
アクセス